Let’s Build Something
Great Together

Tell us a bit about yourself and your project, just fill in the form below and we’ll be in touch soon.

Get in Touch
Bangkok

Address

753/2 Somdej Phrachao Taksin Road, Dao Khanong, Thon Buri, Bangkok 10600

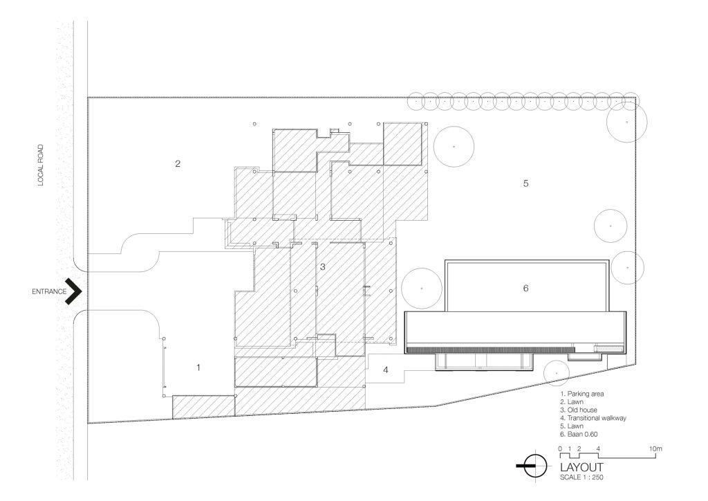
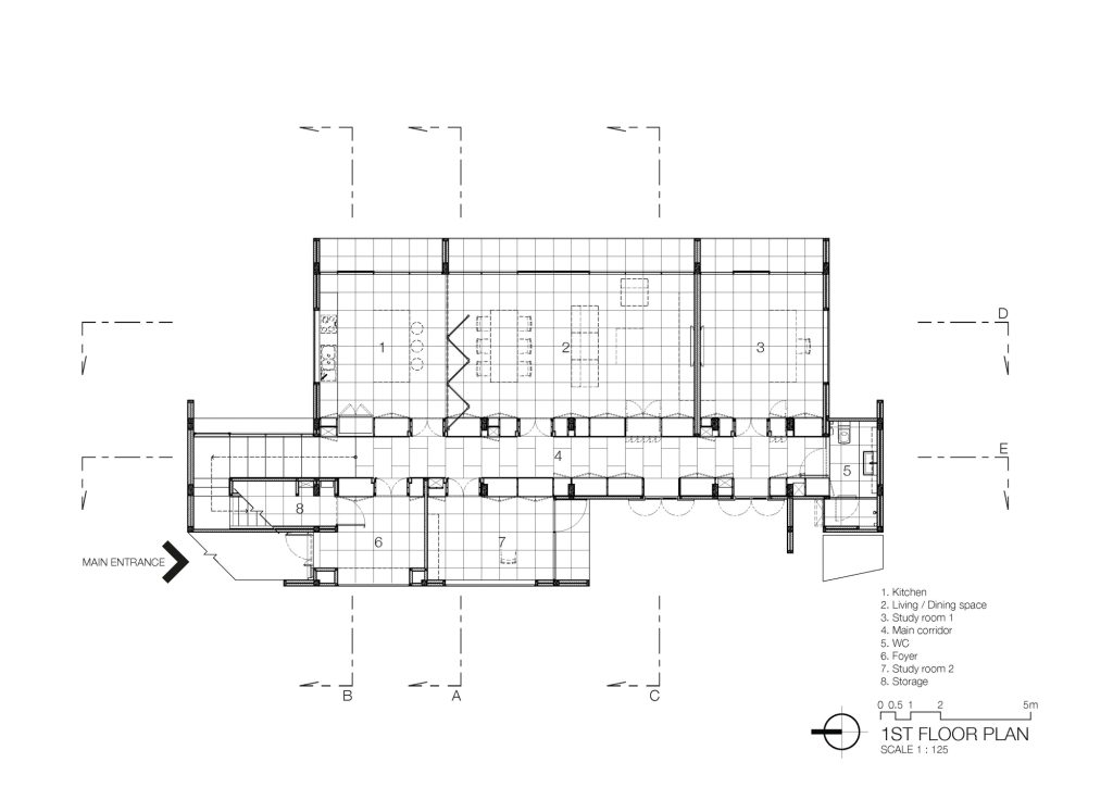
Baan 0.60 Baan 0.60 Baan 0.60 Baan 0.60 Baan 0.60 Baan 0.60

System for Living.

"With the owner’s habit of enjoying a neat and tidy space, BAAN 0.60 is a vision of creating a minimal space that always maintains its purity, free from any evidence of living.

The series of cabinet systems, which work along the house’s axis and are connected to every single space, allows the household to comfortably organize things in concealed spaces, as well as the structure and machinery.

Apart from hiding things, the cabinet system also creates connections between spaces, including circulation and ventilation. Moreover, it provides a service path to keep the house easy to maintain.

The linear void on the roof creates a vertical connection between the inside and outside, providing natural light and ventilation to the corridor.

All spaces are assembled from the 0.60 x 0.60m grid, which is the easiest constructing module due to the structural system and building materials. This method generates the perfect alignment of every single parting line.

BAAN 0.60 is an attempt to generate an endless ideal scene of minimalism by creating a living system that conforms to the living behavior of the household."

Clients

Disatat Suwanagool, Amanda Suwanagool

Gross Floor Area

340 Sq.m.

Outdoor Area

80 Sq.m.

Design Date

2012

Completion Date

2015

Architect

IF (Integrated Field)

Interior Designer

IF (Integrated Field)

Landscape Architect

IF (Integrated Field)

Lighting Designer

IF (Integrated Field)
Kullankaln Gururatana

Structural Engineer

Basic Design

MEP Engineer

SITE 83

Main Contractor

VMR ASSOCIATES

Interior Contractor

VMR ASSOCIATES

Softscape Contractor

SAENG AREE GARDEN

D&W Contractor

Sakon Jaikaew

Curtain Contractor

R US DESIGN

Photographer

WWORKSPACE

Awards
  • Emerging Architecture Awards  - Silver Awards (2017)