Let’s Build Something
Great Together

Tell us a bit about yourself and your project, just fill in the form below and we’ll be in touch soon.

Get in Touch
Bangkok

Address

753/2 Somdet Prachao Taksin Road, Down Ka Nong, Thonburi, Bangkok, 10600

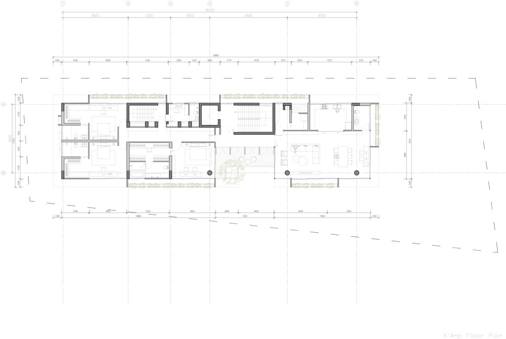
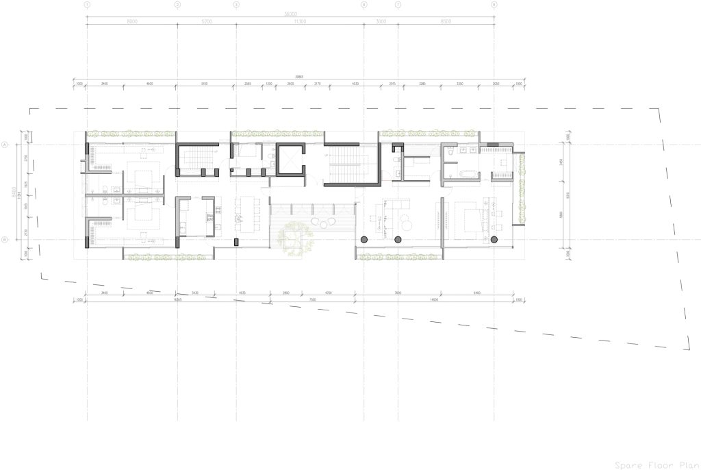
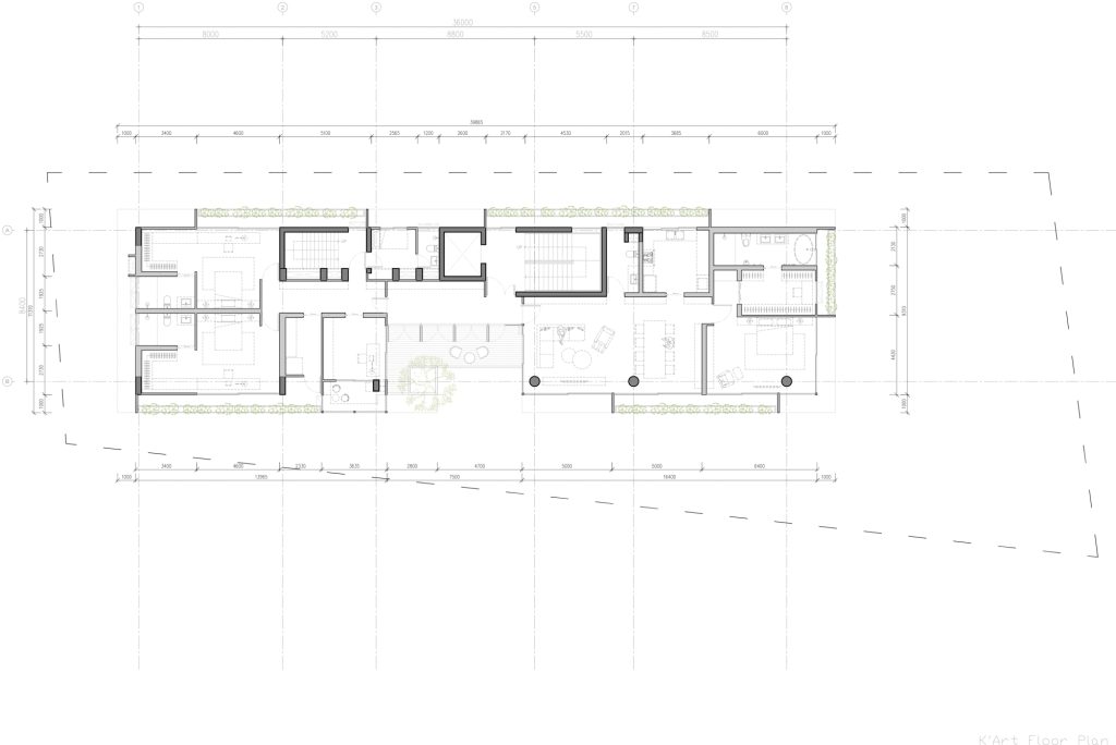
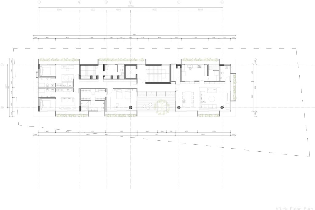
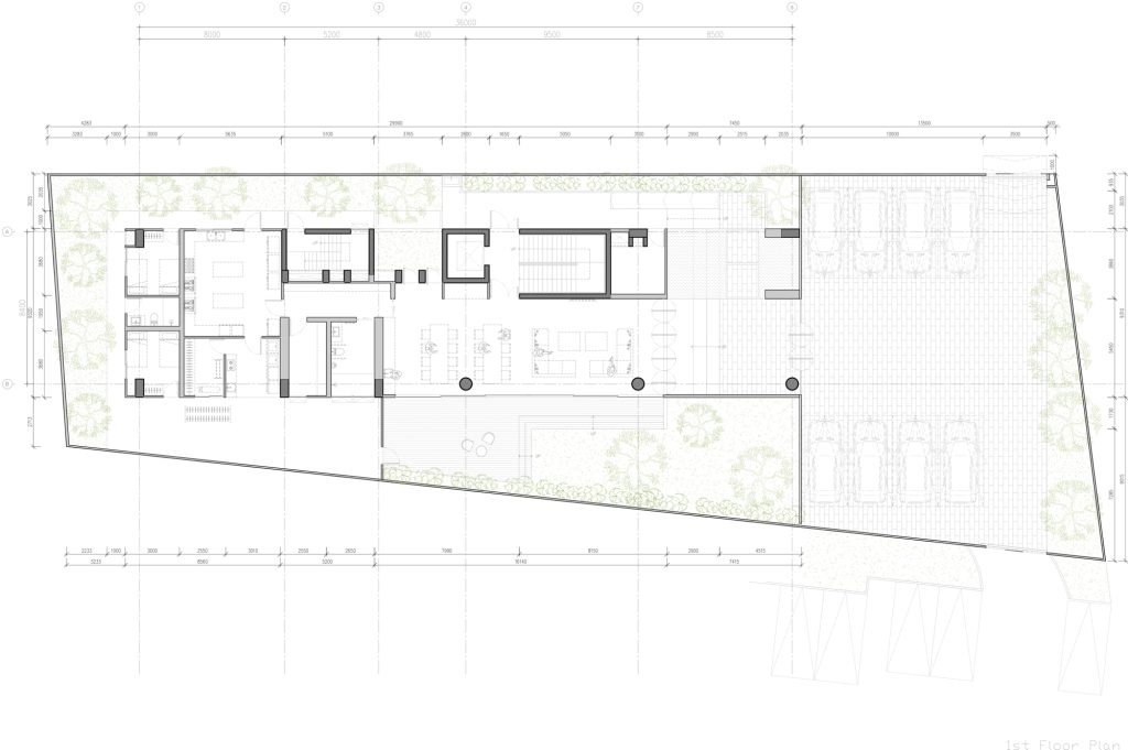
SKV House SKV House SKV House SKV House SKV House SKV House

Vertical living, redefined as individual homes in one shared form.

SKV House explores the idea of vertical living by rethinking how detached home experiences can exist within a single large-scale structure. Each unit is designed with its own sense of entry, layered outdoor spaces, and privacy, creating a stacked composition of individual residences. Landscape elements and terraces are woven throughout the building to blur the boundary between shared structure and personal home.

Location

Sukhumvit 60 Bangkok

Site Area

1,022 Sq.m.

Gross Floor Area

2,446 Sq.m.

Outdoor Area

863 Sq.m.

Design Date

2022

Completion Date

2023

Architect

IF (Integrated Field)

Structural Engineer

QBIC ENGINEERS & ARCHITECTS