Let’s Build Something
Great Together

Tell us a bit about yourself and your project, just fill in the form below and we’ll be in touch soon.

Get in Touch
Bangkok

Address

753/2 Somdet Prachao Taksin Road, Down Ka Nong, Thonburi, Bangkok, 10600

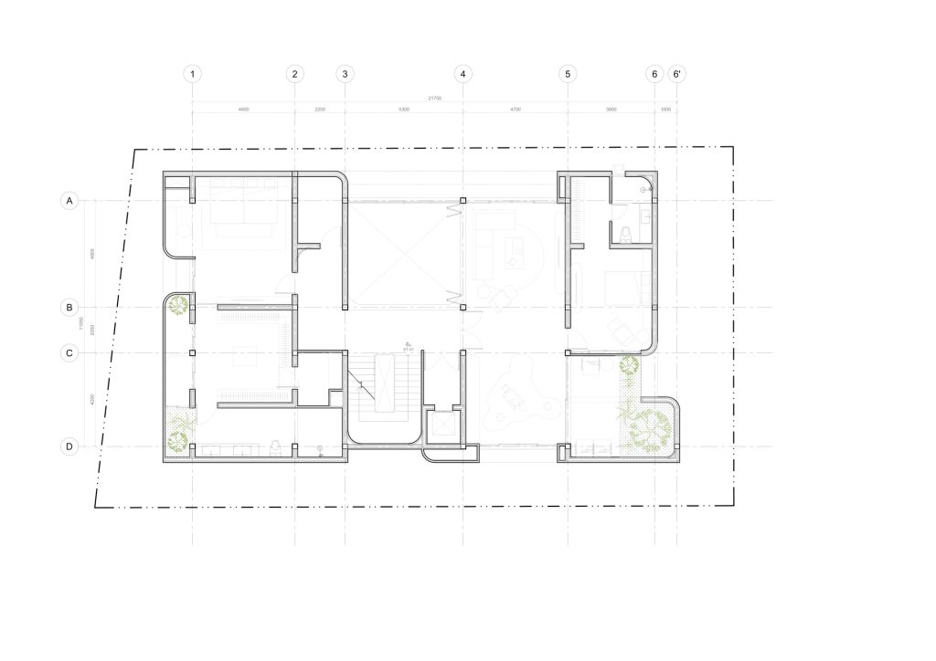
NN House NN House NN House NN House NN House NN House

Story of fillet wall

"NN House is designed to accommodate a full family within a compact urban plot. The building mass is divided into four main blocks with a central outdoor space that acts as both a visual and spatial relief. This interstitial courtyard introduces light, ventilation, and greenery into the heart of the home.

The curved walls along the perimeter help soften the building’s form while maintaining privacy from adjacent neighbors. These forms also guide the transition between indoor and outdoor areas, creating semi-enclosed terraces and flexible zones that support changing family needs over time.

The layout emphasizes accessibility and adaptability, allowing different generations to share the space while still maintaining individual zones of comfort and autonomy."

Location

Rama 3, Bangkok, Thailand

Site Area

400 Sq.m.

Gross Floor Area

900 Sq.m.

Outdoor Area

90 Sq.m.

Design Date

2023

Architect

IF (Integrated Field)

Interior Designer

IF (Integrated Field)

Main Contractor

SERENE CONSTRUCTION