Let’s Build Something
Great Together

Tell us a bit about yourself and your project, just fill in the form below and we’ll be in touch soon.

Get in Touch
Bangkok

Address

753/2 Somdet Prachao Taksin Road, Down Ka Nong, Thonburi, Bangkok, 10600

WN House WN House WN House WN House WN House WN House

A shared home of contrasts—solid yet open, social yet private.

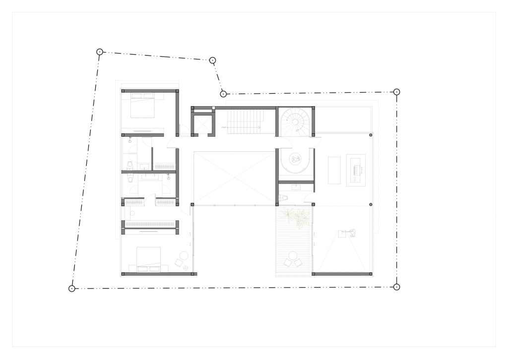
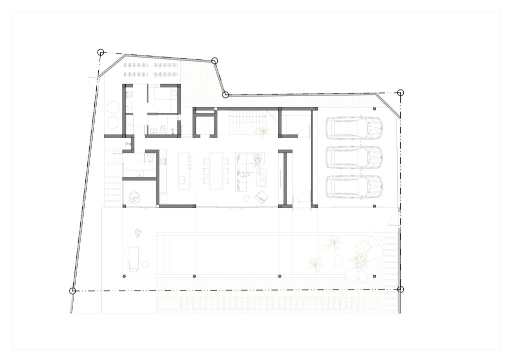
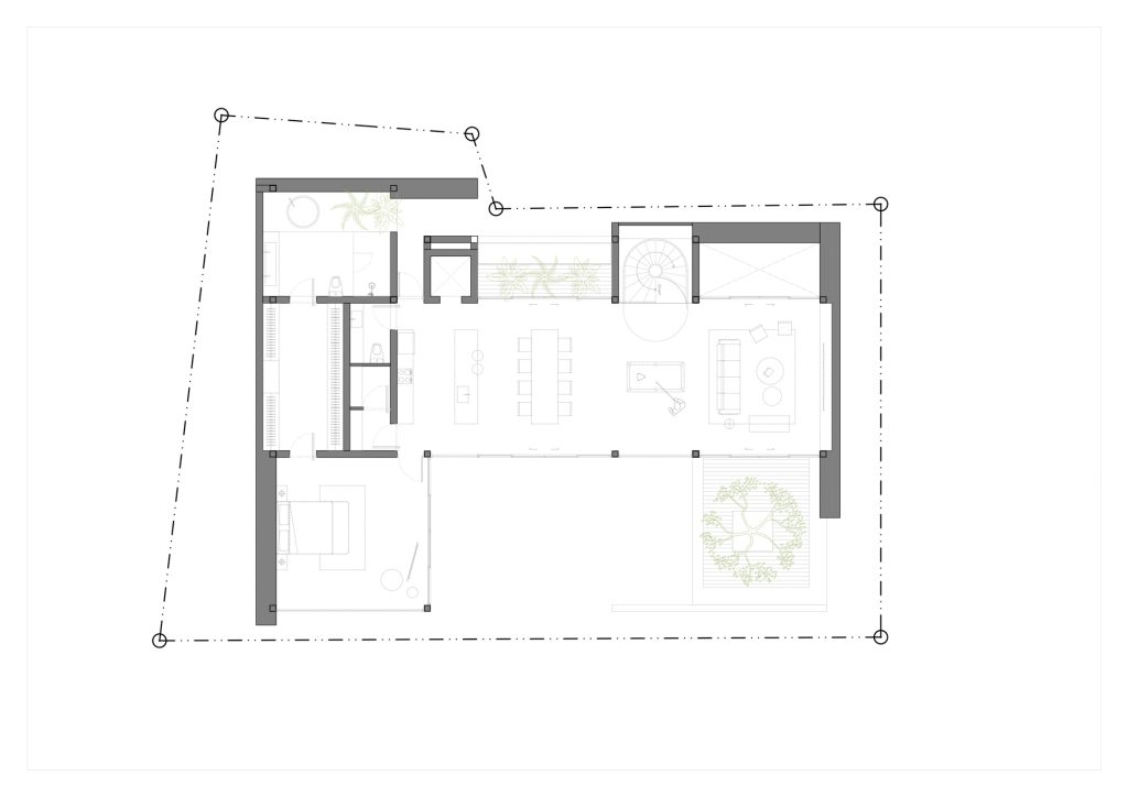
"WN House is designed as a multi-generational home organized around a central courtyard and a long swimming pool that ties all spaces together. The architecture negotiates privacy and openness by using a solid curved wall that shields the house from the street while forming a soft boundary.
On the upper level, the dark-toned penthouse stands in deliberate contrast to the lighter base, both in color and character—defining a quieter, more secluded space that sits apart from the shared family zones below. The design reflects a balance between collectivity and retreat, offering layered spatial experiences for different ways of living."

Location

Rama 3, Bangkok, Thailand

Design Date

2023