Let’s Build Something
Great Together

Tell us a bit about yourself and your project, just fill in the form below and we’ll be in touch soon.

Get in Touch
Bangkok

Address

753/2 Somdet Prachao Taksin Road, Down Ka Nong, Thonburi, Bangkok, 10600

PB House PB House PB House PB House PB House PB House

Designed for the everyday meeting of loved ones.

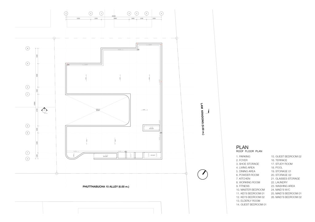
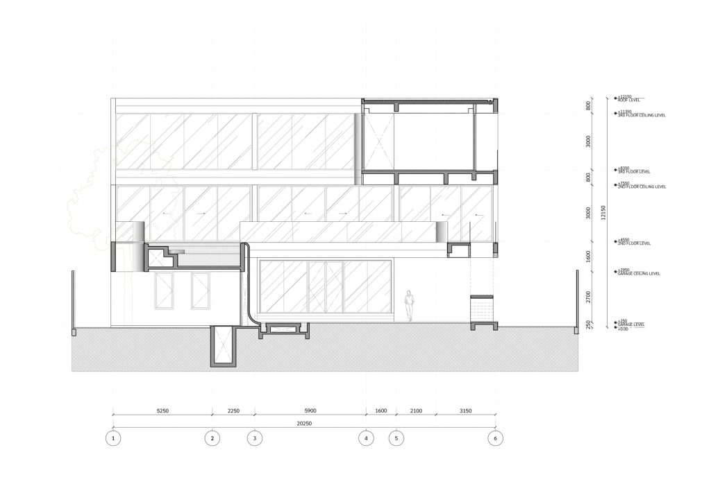
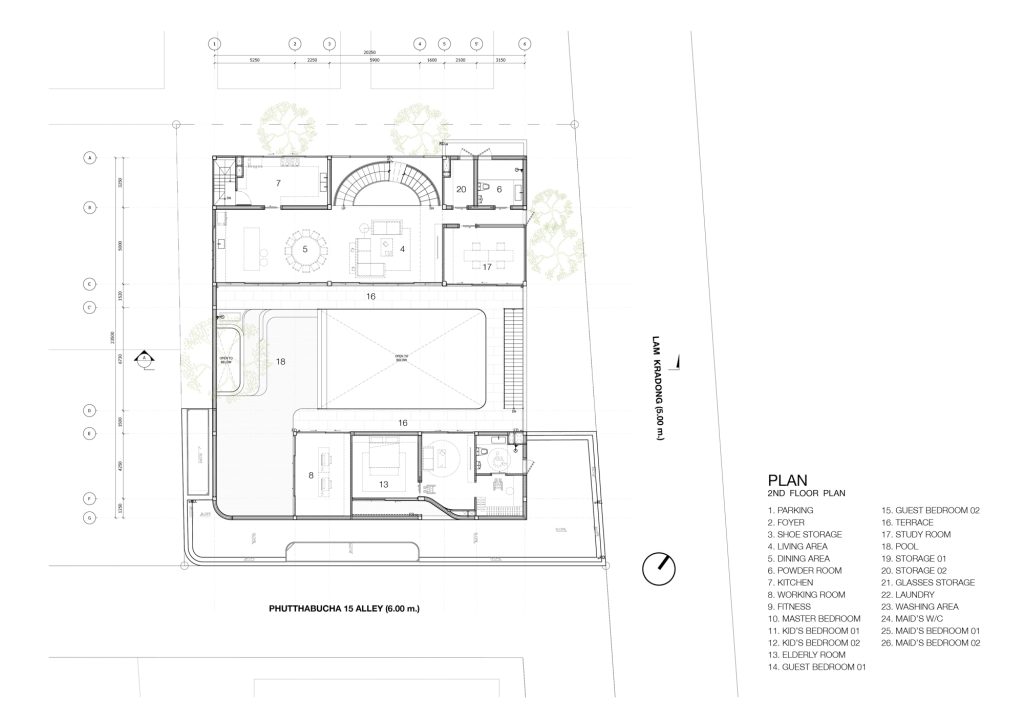
"This home was designed for a young and growing family—new parents with a child who’s growing by the day, grandparents who will live with them, and visiting relatives who drop by regularly. It needed to balance privacy, safety, comfort, and adaptability for future changes.
From the outside, the house appears discreet and enclosed, yet it's carefully punctuated with light and ventilation openings. Inside, a central open-air courtyard connects all spaces, encouraging daily family interaction—true to its name: “Pob” (which means “to meet” in Thai)."

Location

Phutthabucha, Bangkok, Thailand

Site Area

800 Sq.m.

Gross Floor Area

1,169 Sq.m.

Outdoor Area

490 Sq.m.

Design Date

2024

Architect

IF (Integrated Field)

Interior Designer

Crafterior Studio

Structural Engineer

Tikumporn Nissaipun

MEP Engineer

Worapat Panacharoenpong