Let’s Build Something
Great Together

Tell us a bit about yourself and your project, just fill in the form below and we’ll be in touch soon.

Get in Touch
Bangkok

Address

753/2 Somdet Prachao Taksin Road, Down Ka Nong, Thonburi, Bangkok, 10600

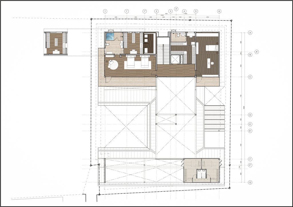
S31 House S31 House S31 House S31 House S31 House S31 House

A quiet, purposeful home shaped by care and climate.

This home is designed for elderly residents in their 70s–80s who seek a more convenient living environment as they age. The project began with a response to the challenges of the owner’s previous house, which featured multi-level split steps common in homes built 30 years ago.

Having lived on this land for decades, the owner has a deep familiarity with the site’s natural conditions—sunlight, wind, and rain patterns. This insight guided the planning of the zoning and functions, aligning them carefully with natural ventilation and daylight, without any initial emphasis on form or aesthetics.

Every detail is designed with aging in mind: ramps, lifts, handrails, and flush floor levels—especially in critical areas like bathrooms. The pool is designed to be both easy to maintain and safe, with the capability to support hydrotherapy according to standard requirements.

A calm, practical home that prioritizes safety, ease of care, and long-term comfort for elderly living.

Location

Bangkok, Thailand

Site Area

981 Sq.m.

Gross Floor Area

899 Sq.m.

Outdoor Area

297 Sq.m.

Design Date

2024