Let’s Build Something
Great Together

Tell us a bit about yourself and your project, just fill in the form below and we’ll be in touch soon.

Get in Touch
Bangkok

Address

753/2 Somdet Prachao Taksin Road, Down Ka Nong, Thonburi, Bangkok, 10600

KN House KN House KN House KN House KN House KN House

The Soft Boundary

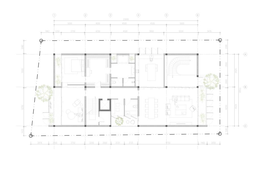
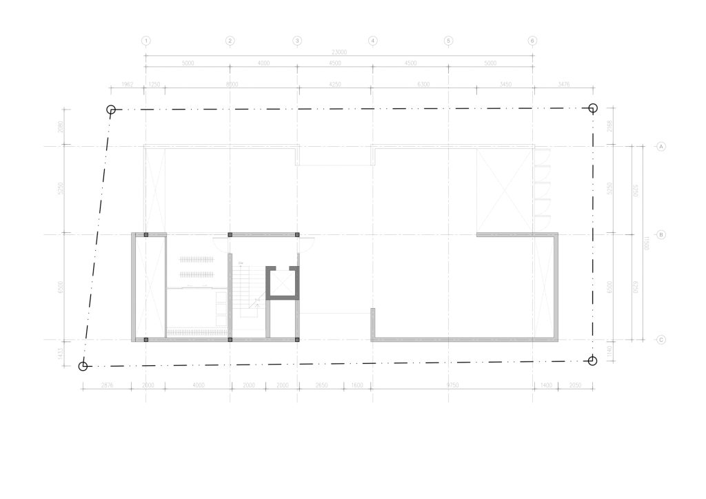
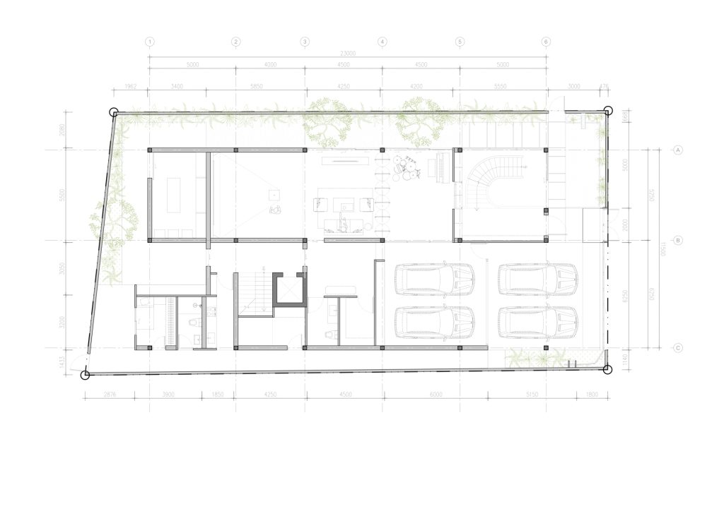
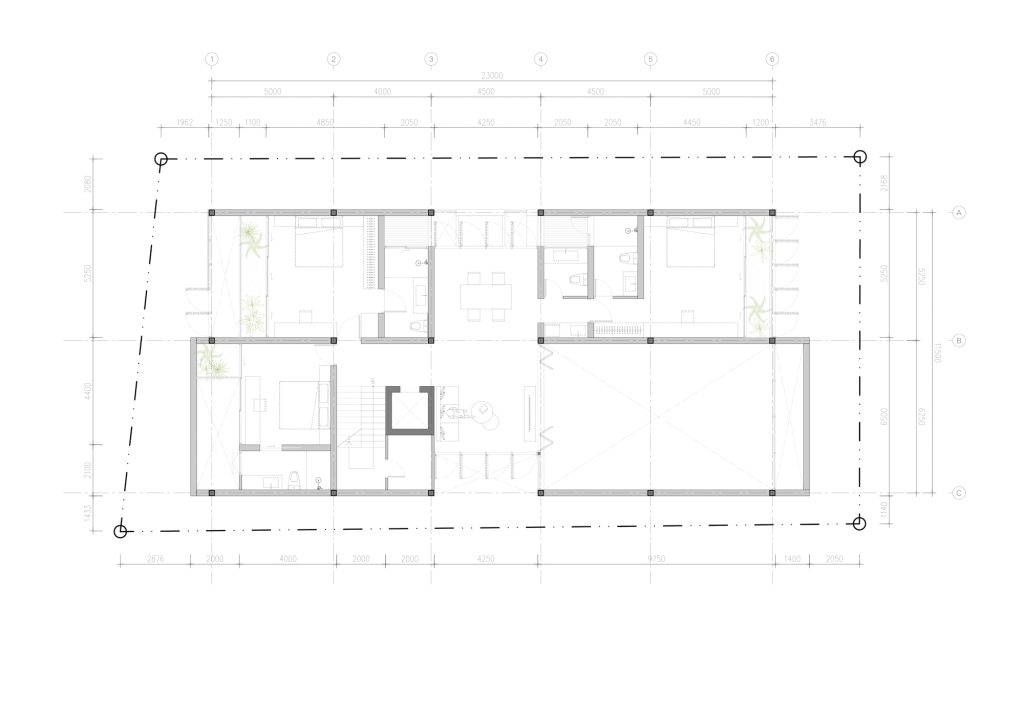
"Located on a compact site in an urban residential area, KN House reinterprets the idea of privacy in dense contexts. The design explores how to maintain openness and spatial richness within a house that faces directly onto a public street and neighboring structures on all sides.

The layout is organized around a series of internal courtyards that act as both visual buffers and sources of light. These gardens—placed at different levels—break up the building mass while introducing natural ventilation and a sense of calm throughout the home. Vertical fins and wooden screens filter light and views, allowing the architecture to breathe without fully revealing itself.

Inside, the open-plan living and dining area connects to the outdoor courtyard, extending the experience of space without relying on exterior openness. A high ceiling reinforces the spatial generosity, while material choices—subtle textures and warm wood tones—offer a tactile sense of comfort and restraint.

KN House is a study in how boundaries can be softened—how a home can stay grounded and generous, even when the surroundings suggest otherwise."

Location

Rama 3, Bangkok, Thailand

Site Area

448 Sq.m.

Gross Floor Area

917 Sq.m.

Outdoor Area

226 Sq.m.

Design Date

2023

Architect

IF (Integrated Field)

Interior Designer

IF (Integrated Field)