Let’s Build Something
Great Together

Tell us a bit about yourself and your project, just fill in the form below and we’ll be in touch soon.

Get in Touch
Bangkok

Address

753/2 Somdet Prachao Taksin Road, Down Ka Nong, Thonburi, Bangkok, 10600

Oer-areemitr’s Garden & Pavilion Oer-areemitr’s Garden & Pavilion Oer-areemitr’s Garden & Pavilion Oer-areemitr’s Garden & Pavilion Oer-areemitr’s Garden & Pavilion Oer-areemitr’s Garden & Pavilion

Family gathering

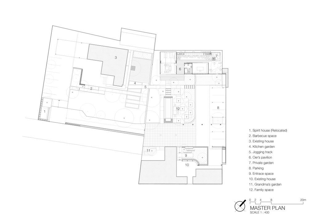
"The basis of the project is that the owner had purchased the neighbor area as an extension of the house. The total area consists of two houses and concrete opened space, used to be parking area and multi-purpose area. The existing garden was placed around the edge of land and it served for only visual aesthetic purpose. Furthermore, the newly-purchased house doesn’t provide synchronized circulation to the existing house. Therefore, the owner would like to redesign the layout planning and landscape in order to encourage more relationship between the usages of inside architecture and outside architecture and to increase more green space within house area.
 
In order to encourage more engagement within members of the two houses, we propose the idea of rearranging the whole existing area into shared space consisting of the garden to be used for shared outdoor activities and a small pavilion for an indoor shared activities, those fit into the changes of the members’ lifestyle. These spaces work as shared space, connecting part, and enclosed meditation zone. The members of the houses compose with three families with variety of characteristics including elderly, disable and kid. Therefore the rearrange layout also takes the different features into account.

GARDEN AREA
 
The new area is divided into three main areas. Firstly, ‘Main Open Space’ is the main multi-activities area and green space with small pond connecting both areas. The ‘Main Open Space’ provides relaxing area, small in-house farming, and, most importantly, 200-metre jogging track as a circulation connecting all are of the house.

Secondly, ‘Green Terrace’ enhances landscape value in the existing idle concrete area; Using the composition of green area to manage cleaning areas and empty concrete area.
And lastly, ‘Private Garden’ serves as enclosed meditation area.

The selection of tree is choosing high shade category like Chamchuree, so that it provides shade for activities during daytime. The main purpose of the new area is to let the members of the houses enjoy the landscape, ventilation, scent from trees and flowers and tranquil sound of water from the small pond.

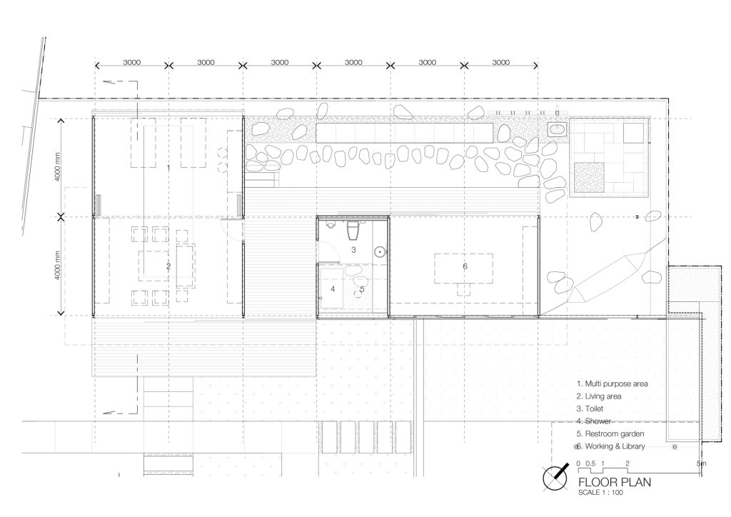
PAVILION AREA
 
This pavilion’s purpose is mainly for family to use this space together. It divides the shared and private garden, but still have a connecting part to connect these two areas together.
There are 3 main spaces which response to the garden differently and in individually. The main living space / multi-purpose area is facing the main garden to act as a room for this garden and allow the family to use this space together with the shared garden.
The working space / library faces the private garden to create a quite and peaceful space for both indoor and outdoor activities.
The toilet / shower area has its own garden to allow natural light and ventilation.
 
The material selection is based on the raw material used in the construction to explore how to lessen the construction cost and materials. Also, most furniture is loose and movable to make the room adjustable. Some of the furniture are taken from an old house along with some new design and built."

Location

Taksin Rd., Bangkok, Thailand

Gross Floor Area

140 Sq.m.

Outdoor Area

3,200 Sq.m.

Design Date

2012

Completion Date

2014

Architect

IF (Integrated Field)

Interior Designer

IF (Integrated Field)

Landscape Architect

IF (Integrated Field)

Structural Engineer

New TL Nature

MEP Engineer

New TL Nature

Main Contractor

New TL Nature

Photographer

IF (Integrated Field)

Awards
  • TALA Awards  - Honor Award (2016)
    Private Residence