Let’s Build Something
Great Together

Tell us a bit about yourself and your project, just fill in the form below and we’ll be in touch soon.

Get in Touch
Bangkok

Address

753/2 Somdej Phrachao Taksin Road, Dao Khanong, Thon Buri, Bangkok 10600

Coca Grill Coca Grill Coca Grill Coca Grill Coca Grill Coca Grill

Indoor Street

"Since 1957, with its original Hong Kong taste and the atmosphere that combines Chinese and Asian styles, ""Coca Suki"" has become one of the best names in suki restaurants in Thailand.

In 2012, Coca Holdings International Co., Ltd. decided to expand its culinary offerings to include grilled food but still wanted the Coca name to be recognized by customers. That was how the name 'Coca Grill' originated. IF's task was to define the main character of this new restaurant and use it as a guideline for all following branches.

At the beginning of the design process, we looked back at Coca’s history and searched for elements that could be used to define the new ""Coca Grill,"" while still reflecting the modern behavior and style of eating grilled food. We also considered the history and culture of grilled food in the Asian region as an important aspect of this project.

Our inspiration came from these references, particularly the atmosphere of ""street food"" across the Asian region. It embodies history, contemporariness, and the Asian essence—characteristics that define Coca Suki.

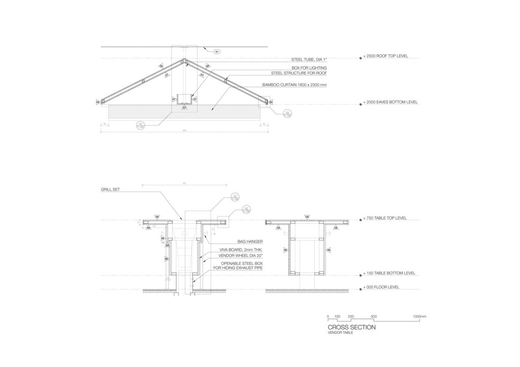
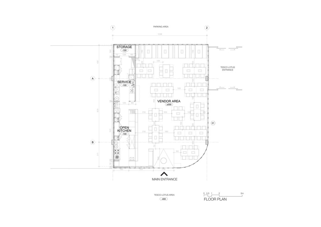
The concept of an ""INDOOR STREET"" became the main character for this restaurant, incorporating elements such as 'street vendor-style restaurants,' 'street light signs,' 'street floor patterns,' 'manholes,' 'visible/open kitchens,' and 'colorful chairs.'

Interior color and lighting played crucial roles in this project as well. IF proposed several shades of grey as the background color of the restaurant, referencing the color of unlit charcoal, a key element of grill cooking. The lighting tone is orange, symbolizing the charcoal when it’s lit on fire.

Additionally, IF proposed a set of equipment with a terra-cotta feel, but simpler in form than traditional designs, to complement the interior mood."
"Normally, a clinic is not considered a destination, except when one is sick or unwell. However, taking care of your health and getting regular check-ups is not such a bad idea. Therefore, this dental clinic, DENTAL BLISS, was designed to create a feeling of relaxation and warmth to lessen visitors' stress from spending time in a small space with strangers, making it feel like a routine visit to the clinic.

According to the basic idea mentioned above, IF proposed a layout that would provide the waiting area with a good quality of relaxation and warmth, while still maintaining a sense of privacy. It is a space that balances formality and informality. The seating in the waiting area, which we call the ""TOOTH UNIT,"" was designed to be the main feature of this dental clinic. These are 45x45x45 cm cubes wrapped in white leather, mixed in two different shades of white. Their lightweight design makes them easy to flip or move around, allowing individuals to create their own seating space, whether private seating or a casual bed.

Furthermore, the entire set can be moved aside to create an open plan for small events or internal seminars, and for cleaning purposes as well.

Another key area of the clinic is the open-plan treatment area. Each room is defined by a white curtain, providing the dentist with convenience when moving from room to room. The space usage can be adjusted depending on different situations, as the dental chairs will not all be used in the early stages. These white curtains also create a sense of comfort for the patients and can be easily removed for cleaning. They can be changed in terms of color, texture, or opacity when the interior mood needs to be altered. 

The only area in the clinic that is separated by brick walls is the X-ray area, to protect other areas from radiation, and this is carefully controlled according to standards and quality.

The color scheme and lighting design are based on the clinic's corporate identity, with white and orange as the main colors. Most areas are painted in bright white, with orange accents highlighting important elements, such as the front label or dental chairs. The lighting design helps define the waiting and treatment areas by using cool white light in the waiting area and warm white light in the treatment area."

Location

Bangna, Bangkok, Thailand

Clients

Coca Holding International

Gross Floor Area

200 Sq.m.

Design Date

2012

Completion Date

2012

Architect

IF (Integrated Field)

Interior Designer

Kullakaln Gururatana

FF&E Designer

IF (Integrated Field)

Brand Identity Designer

Choochart Nitijessadawong

Main Contractor

CHOICE INTERIORS

Photographer

Ketsiree Wongwan