Let’s Build Something
Great Together

Tell us a bit about yourself and your project, just fill in the form below and we’ll be in touch soon.

Get in Touch
Bangkok

Address

753/2 Somdej Phrachao Taksin Road, Dao Khanong, Thon Buri, Bangkok 10600

house 54 whatif 02.webp
house 54 whatif 03.webp
house 54 whatif 04.webp
หลากหลายใต้ชายคา
Integratedfield
house 54 whatif 01 scaled.webp

#whatIF

หลากหลายใต้ชายคา

บ้านที่รวมความต้องการที่หลากหลายเข้าด้วยกัน จะมีหน้าตาเป็นอย่างไร?

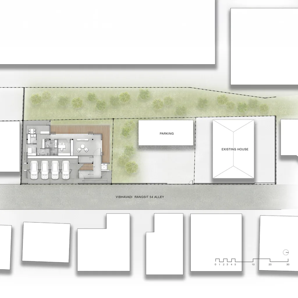
โปรเจกต์ออกแบบบ้านพักอาศัยหลังนี้ เริ่มจากความตั้งใจของ owner ที่ต้องการขยายพื้นที่การอยู่อาศัยของครอบครัว เนื่องจากบ้านที่อยู่ในปัจจุบันเริ่มไม่ตอบโจทย์การใช้งาน และเป็นการเตรียมพื้นที่ไว้สำหรับการเติบโตของลูก ๆ ในอนาคต จึงตัดสินใจสร้างบ้านใหม่ในรั้วเดียวกันกับบ้านเดิม เพื่อให้ทุกคนได้อยู่ด้วยกันในแวดล้อมเดิมที่คุ้นเคย และยังสามารถเชื่อมต่อกับบ้านเดิมได้อย่างเป็นธรรมชาติ

สมาชิกในครอบครัวมีไลฟ์สไตล์ที่ใช้เวลาร่วมกันเป็นประจำ และมักเปิดต้อนรับแขกที่มาพบปะสังสรรค์ที่บ้านอยู่บ่อยครั้ง บ้านหลังใหม่นี้จึงต้องออกแบบให้รองรับการใช้งานที่หลากหลาย ทั้งพื้นที่ส่วนรวม และพื้นที่พักผ่อนส่วนตัวที่เพียงพอสำหรับทุกคนในบ้าน

นอกจากการใช้งานแล้ว IF เชื่อว่าความพิเศษของการออกแบบบ้านพักอาศัยคือการนำความชอบ ความฝัน และตัวตนของเจ้าของบ้านและผู้ใช้เข้ามาอยู่ในงาน ซึ่งบ้านหลังนี้ IF มีความตั้งใจสอดแทรกสิ่งเหล่านั้นเข้าไป ไม่ว่าจะเป็นการนำไม้ที่เจ้าของบ้านสะสมไว้มาใช้งาน หรือการนำสไตล์ของบ้านที่คนในบ้านชื่นชอบมาเป็นปัจจัยในการออกแบบ

ถ้าหากการออกแบบคือการมองหาความเป็นไปได้ การออกแบบของ IF คือการหาความเป็นไปได้โดยคำนึงถึงสิ่งที่เล็กและเป็นส่วนตัวที่สุดอย่างความชอบ หรืองานอดิเรก ไปจนถึงเรื่องที่ใหญ่ขึ้นอย่างการใช้งาน การก่อสร้าง ทิศทางแดด ลม ฝน และร้อยเรียงออกมาเป็นสถาปัตยกรรมที่ตอบโจทย์ผู้ใช้งานในทุกมิติ

Many Lives Under One Roof

What would a home that brings together a wide range of needs look like?

This residential design project began with the owner’s intention to expand the family’s living space. Their current home had begun to fall short of functional needs, and they wished to prepare additional space for their children’s future growth. The decision was made to construct a new house within the same property boundary as the existing one, allowing the family to remain together in a familiar environment while maintaining a natural spatial connection between the two homes.

The family enjoys spending time together regularly and often hosts guests for gatherings at home. The new house therefore needed to accommodate a variety of uses—providing generous communal areas as well as sufficient private spaces for every family member.

Beyond functional requirements, IF believes that the essence of residential architecture lies in integrating the owner’s preferences, dreams, and identity into the design. In this project, IF thoughtfully incorporated these personal elements—whether through the use of timber collected by the owner or by translating the family’s favored architectural styles into design considerations.

If design is the pursuit of possibilities, then IF’s design approach is to explore those possibilities by embracing the smallest, most personal details—such as individual preferences and hobbies—while also addressing larger concerns such as usability, construction, solar orientation, wind, and rain. These layers are woven together to create an architecture that responds meaningfully to the users in every dimension.