Let’s Build Something
Great Together

Tell us a bit about yourself and your project, just fill in the form below and we’ll be in touch soon.

Get in Touch
Bangkok

Address

753/2 Somdet Prachao Taksin Road, Down Ka Nong, Thonburi, Bangkok, 10600

BIT Playground BIT Playground BIT Playground BIT Playground BIT Playground BIT Playground

Playable Facade

"Without question, nowadays, technology has become one of the most fundamental aspects of many people’s lives, and the speed of development has been increasing continuously. To prepare and provide our young generation with a proper and fun learning environment, ‘bit.studio’ has launched a new project called “bit.playground,” and IF has been assigned the responsibility of designing the front façade and layout.

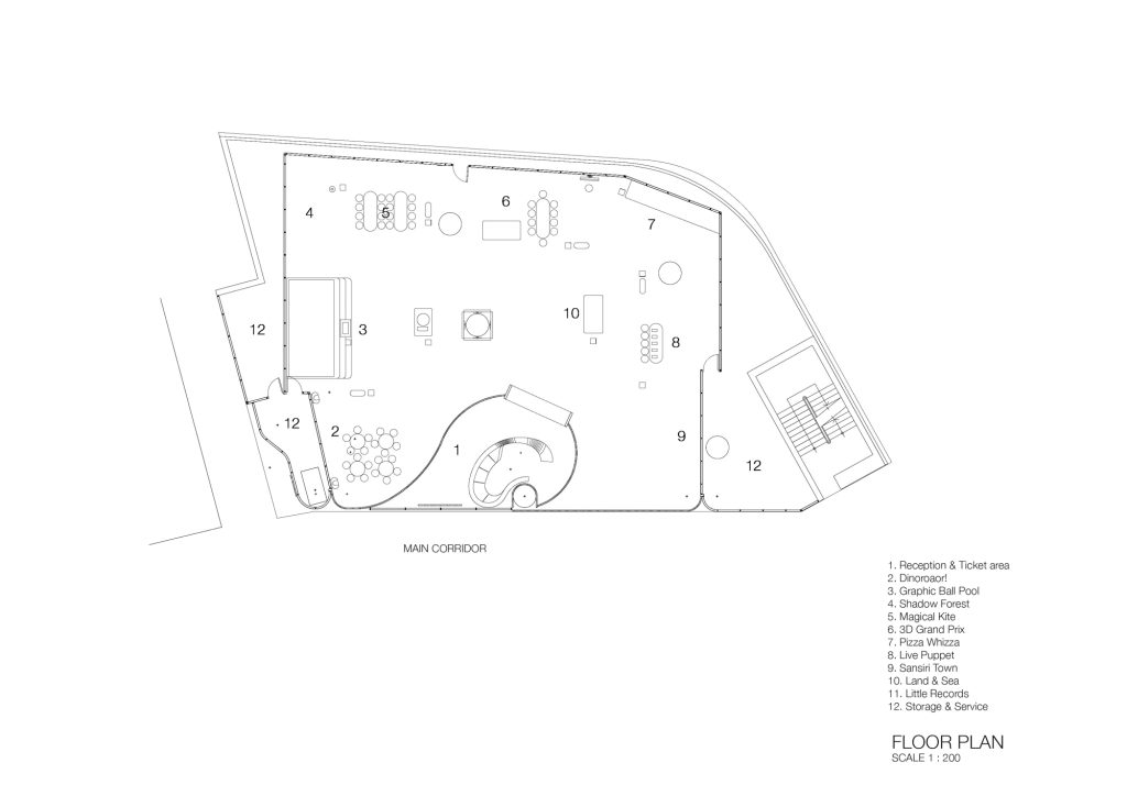
The main purpose of this 450 sq.m. ‘interactive digital playground’ in the Helix building of the Emquartier Shopping Mall is to create a space that is inviting and inspiring, especially for young people, to experience the importance of technology through play. Therefore, the design approach for this project is to create a simple and clean space with a white tone to make all the interactive elements stand out the most.

For the front façade, IF proposed the idea of using balls from a ball pond to create a familiar look of fun for the kids. All these white balls are attached together through embroidery and mixed with spin-able circular white wooden plates below a height of 1.20 m to create dynamism and interaction for the passing kids. Additionally, the gap between the plate and the ball allows people from outside to peek into the atmosphere inside.

This white ball wall leads people inside, while the layered plywood reception counter at the entrance area provides warmth, softness, and friendliness to balance this digitally oriented space.

The space for playing and exploring in the world of imagination through interactive technology is divided into 10 zones. All these play areas are set along the wall, using it as a canvas for the contents from the projectors, leaving the center open for activities’ intro and outro.

These 10 zones created by ‘bit.studio’ are:

1. Dinoroar - Hatch your dinosaur: A play space where kids can draw on a dinosaur egg, which later hatches into the digital world.

2. Shadow Forest - Bring your shadow to life: The hand shadow animals kids create will become digitally alive.

3. Land & Sea - Discover wild creatures and natural wonders: A learning space where children shape sand to create sky and sea according to their design.

4. Little Records - Compose your special song.

5. Magical Kite - Color your kite and make it come alive!

6. Live Puppet - Sing, dance, act, and be whoever you want to be through the Motion Detector.

7. Sansiri Town - Let’s explore Sansiri Town: Explore Sansiri Town through your avatar, collect points and coins.

8. Pizza Whizza - Animate your pizza slice: Learn how to make pizza with your preferred flavors.

9. 3D Grand Prix - Build your car and race: Make your own race car with clay and race against your friends. The race will be shown on a large screen on the wall.

10. Graphic Ball Pool - Float in your drawing: The drawing kids create will become a digital graphical rainfall from above while they play in the ball pond.

‘bit.playground’ is an attempt to integrate innovation and creativity through technology such as AR, Machine Learning, Motion Detection, and 3D scanning. IF has used design approaches to support this space to its full potential, providing visitors with the best fun and learning experience possible."

Location

Bangkok, Thailand

Clients

bit.studio

Site Area

450 Sq.m.

Gross Floor Area

450 Sq.m.

Design Date

2018

Interior Designer

IF (Integrated Field)

Lighting Designer

Kullakaln Gururatana

Multimedia Design Consultant

bit.studio

MEP Engineer

SITE 83

Photographer

PanoramicStudio